07-0273-dhL
BOUWEN VAN EEN VRIJSTAANDE BIO-ECOLOGISCHE WONING MET PRAKTIJKRUIMTE
Deze woning met osteopatenpraktijk werd gerealiseerd in houtskelet, volgens bio-ecologische bouwprincipes. Het doel van het ontwerp was een complex geheel van factoren (stedebouwkundige situatie, programma, constructie, oriëntatie, ruimtelijkheid, context, …) te vertalen in een “krachtig” neerzetten van iets wat een “eenvoudige” vorm lijkt, en zo de essentie van het ontwerp uit te beelden.
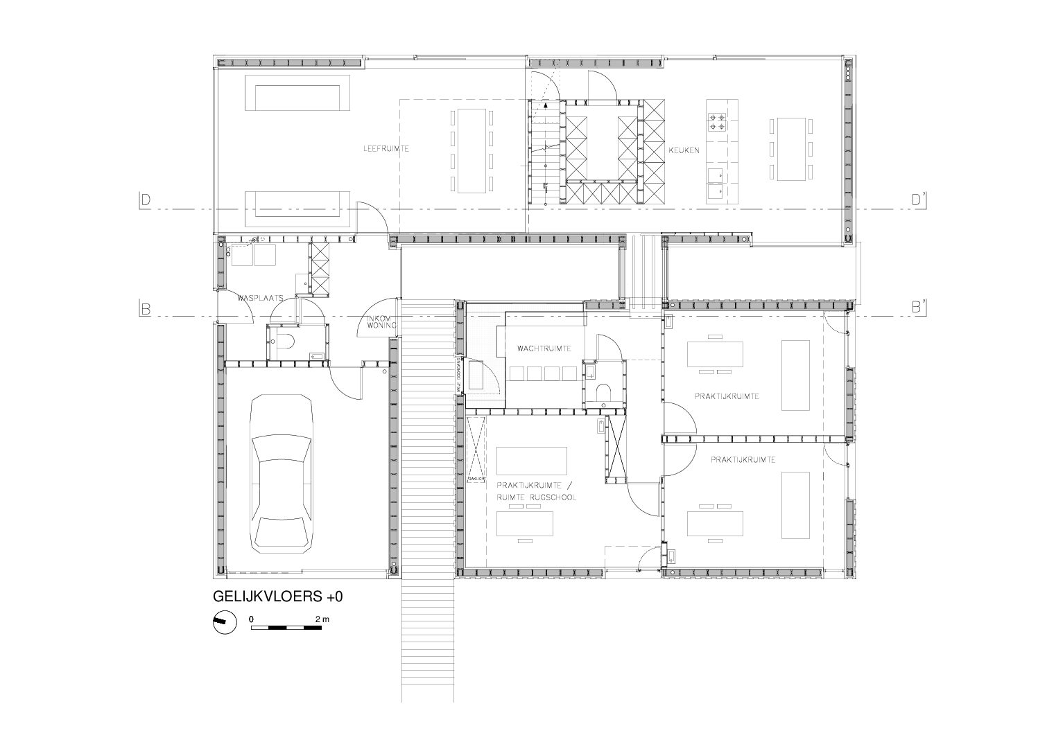
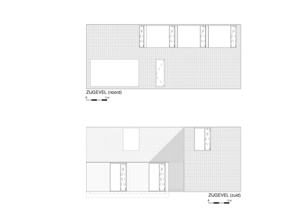
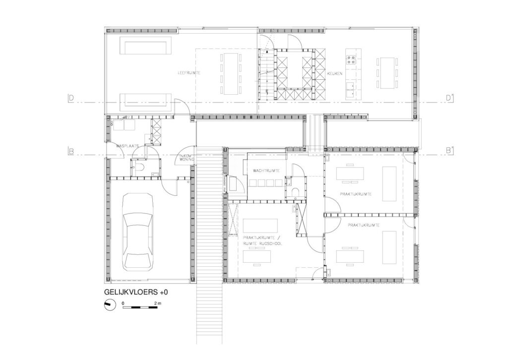
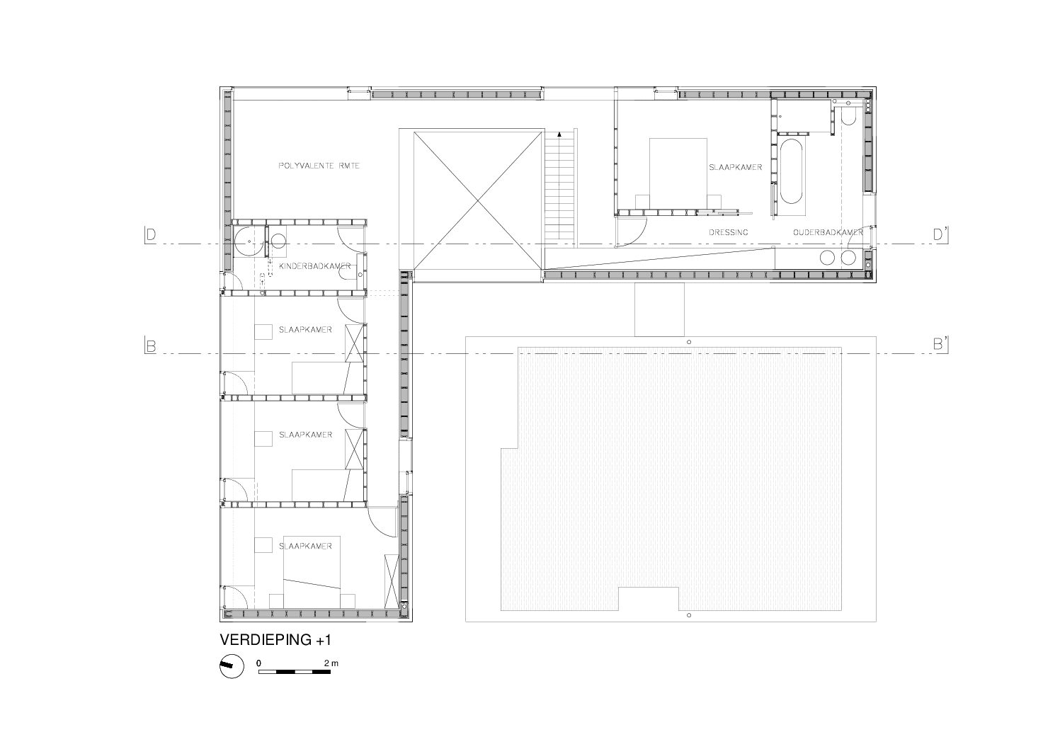
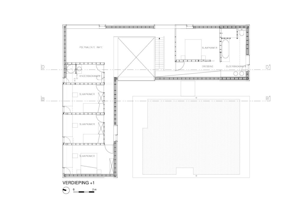
De lage “houten” praktijkruimte zoekt stedebouwkundige dialoog met de 3 naastliggende bungalows en wordt omarmd door de “stenen” woning. In het gebouw worden verschillende sferen binnengebracht door de raampartijen die elk een ander zicht of licht kaderen: de zitruimte naar de gesloten noord-tuin, de eetruimte met zicht naar het open landschap en licht via vide naar west, de keuken als doorzonruimte, de kinderkamers naar noord en de ouderkamer naar oost, de praktijkruimte naar zuid en west.
In dit project vertaalt duurzaamheid zich vooral in de bio-ecologische aanpak. Het was de keuze van de bouwheer om een gebouw te maken met de bedoeling de kwaliteit van de menselijke gezondheid te verbeteren: een gezonde geest in een gezond lichaam in een gezond huis in een gezonde leefomgeving. Het ‘bio-ecologisch gehalte’ hangt af van de werken die men heeft kunnen uitvoeren, de keuzes op vlak van energie, water, materialen en de ligging van het gebouw. Zo is dit project gelegen vlakbij de stadskern. Het is gebouwd met natuurlijke bouwmaterialen met een goede milieu- en gezondheidsscore. Als waterbesparende maatregelen is vooral gekozen voor een water-water warmtepomp, regenwaterrecuperatie en een groendak op de lagere praktijkruimte. Een hoge compactheid, een goede oriëntatie, veel en goedgeplaatste isolatie, ventilatie met warmterecuperatie (systeem D) en energiebesparende technieken (warmtepomp voor verwarming en sanitair water) zorgen hier voor een laag energiepeil E60. Voor de bouwheer was het belangrijker om een gezond en aangenaam binnenklimaat te bekomen dan te streven naar een lager E-peil. Enkele voorbeelden van gebruikte materialen: papiervlokken en vlaswol als isolatie, houtvezel isolatieplaten als dampopen scherm aan de buitenzijde van de constructie, luchtdichte houtvezelplaten als uitstijving aan de binnenzijde, gipsvezelplaat of leempleister als binnenafwerking, …
OPDRACHTGEVER
Privaat
LOCATIE
Lokeren (BE)
ONTWERPTEAM
BLAF architecten
PROGRAMMA
Eéngezinswoning + praktijkruimte
BRUTO VLOEROPPERVLAKTE
305m² woning + 92m² praktijkruimte
STATUS
Opgeleverd 2012
