07-0285-laB
VAKANTIEVERBLIJF MET UITZICHT
Architectuurconcept:
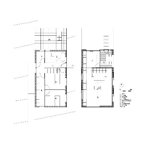
Deze vakantiewoning is gelegen in een verkaveling met uitzicht op een weg met daarachter een schilderachtige vallei. Om het uitzicht op de weg uit te schakelen en dat op de vallei te bewaren is de woonruimte naar de verdieping gebracht, een open ruimte onder het dak. Om het tijdelijk karakter van de vakantiewoning te benadrukken, en de slaapkamers op het gelijkvloers van voldoende privacy te voorzien, zijn de gevels op het gelijkvloers voorzien van luiken die de woning afsluitbaar maken en claustra’s die de inkijk verhinderen.
Energieconcept:
K38. Geen E-peil berekening voor Waals gewest.
Naast de hoge compactheid is in het bijzonder aandacht geschonken aan de isolatie en de luchtdichtheid van de constructie. Hierdoor is het mogelijk het hele volume te verwarmen met 1 centrale houtkachel. Fotovoltaïsche panelen zorgen voor sanitair warm water en voeden een extra elektrische convector in de badkamer. Door de leefruimte op de verdieping te voorzien wordt alle stijgende warmte optimaal benut.
OPDRACHTGEVER
Privaat
LOCATIE
Givry (Bertogne) (BE)
ONTWERPTEAM
BLAF architecten
PROGRAMMA
Vakantieverblijf
BRUTO VLOEROPPERVLAKTE
120m²
