08-304-ceL
NIEUWBOUW VRIJSTAANDE WONING
De woning staat in een bos, en is gebouwd met maximaal behoud van de bomen. De woning trekt zich terug rond een open plek in het bos of de private binnentuin. Hierdoor ontstaat een tuin er rond met een publiek karakter (het bos) met een vervagen van de eigendomsgrenzen. De ervaring van een woning in het bos is een uitgangspunt.
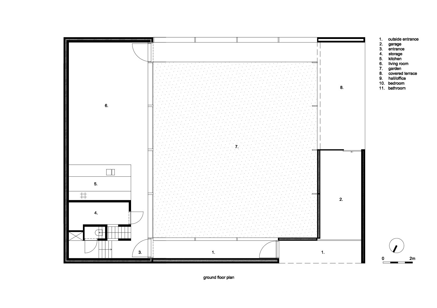
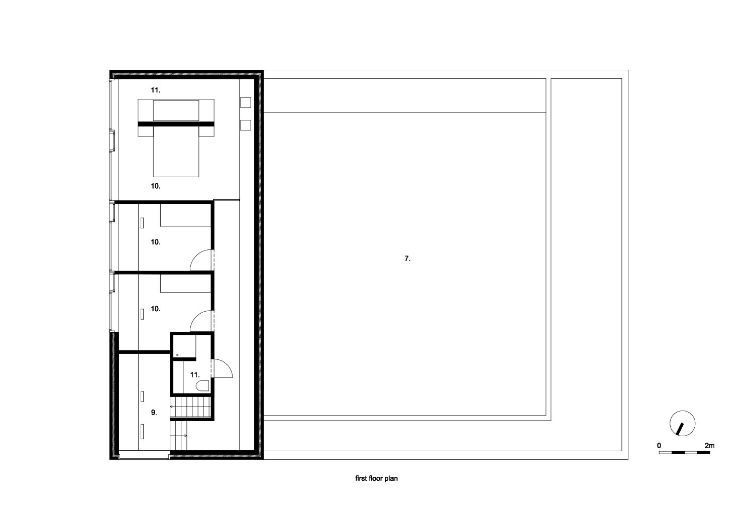
De woning bestaat uit 3 volumes: de hoofdbouw met 2 bouwlagen, de licht verzonken achterbouw met 1 bouwlaag en de fiets- en autoberging. Deze volumes worden verbonden door een overdekte zuilengang. Zo ontstaat er een private binnentuin of een hedendaagse vertaling van een peristylium.
Een peristylium is een door zuilengalerijen omgeven niet-overdekte ruimte in of bij een gebouw. Het woord komt van het Griekse ‘peristylos’ (περιστυλος): ‘met een zuilengang omgeven’. In dit ontwerp wordt dit vertaald in houten zuilen. De voorste zuilengang is een overdekte buitenruimte, afgeschermd naar de straat door een tuinmuur in metselwerk, open zuilen naar de binnenplaats. Achteraan is de zuilengang een pad, geflankeerd door een licht verzonken volume waardoor er contact is met het achterliggende bos. Aan de woning worden de houten zuilen ingevuld met glas, waardoor de zuilengang in de woning komt te liggen en de circulatie van het wonen verzorgt. Aan de garage worden de zuilen met hout ingevuld, erachter blijft het open waardoor ook hier contact met het bos mogelijk wordt. De binnenplaats is een oase in het bos die het zonlicht laat doordringen tot aan of in de woning.
De materialen en kleuren van de gevelmetselwerk en het buitenschrijnwerk sluiten aan bij de bosrijke context. Samen met de geringe kroonlijsthoogtes, de beperkte gecultiveerde grastuin, het open bos rondom het bouwvolume zonder omheiningen of laag groen, het behouden van zoveel mogelijk hoogstammige bomen doet de woning een poging zo weinig mogelijk ‘aanwezig’ te zijn in het bos. Dit zorgt voor een integratie van de bebouwing in zijn omgeving, namelijk het bos.
OPDRACHTGEVER
Privaat
LOCATIE
Lokeren (BE)
ONTWERPTEAM
BLAF architecten
STATUS
Opgeleverd 2009
