10-408-htL
BOUWEN EN UITBREIDEN VAN EEN VRIJSTAANDE WONING
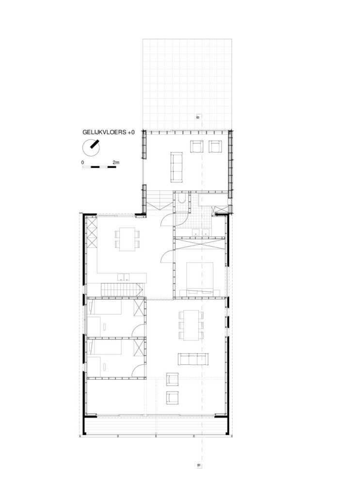
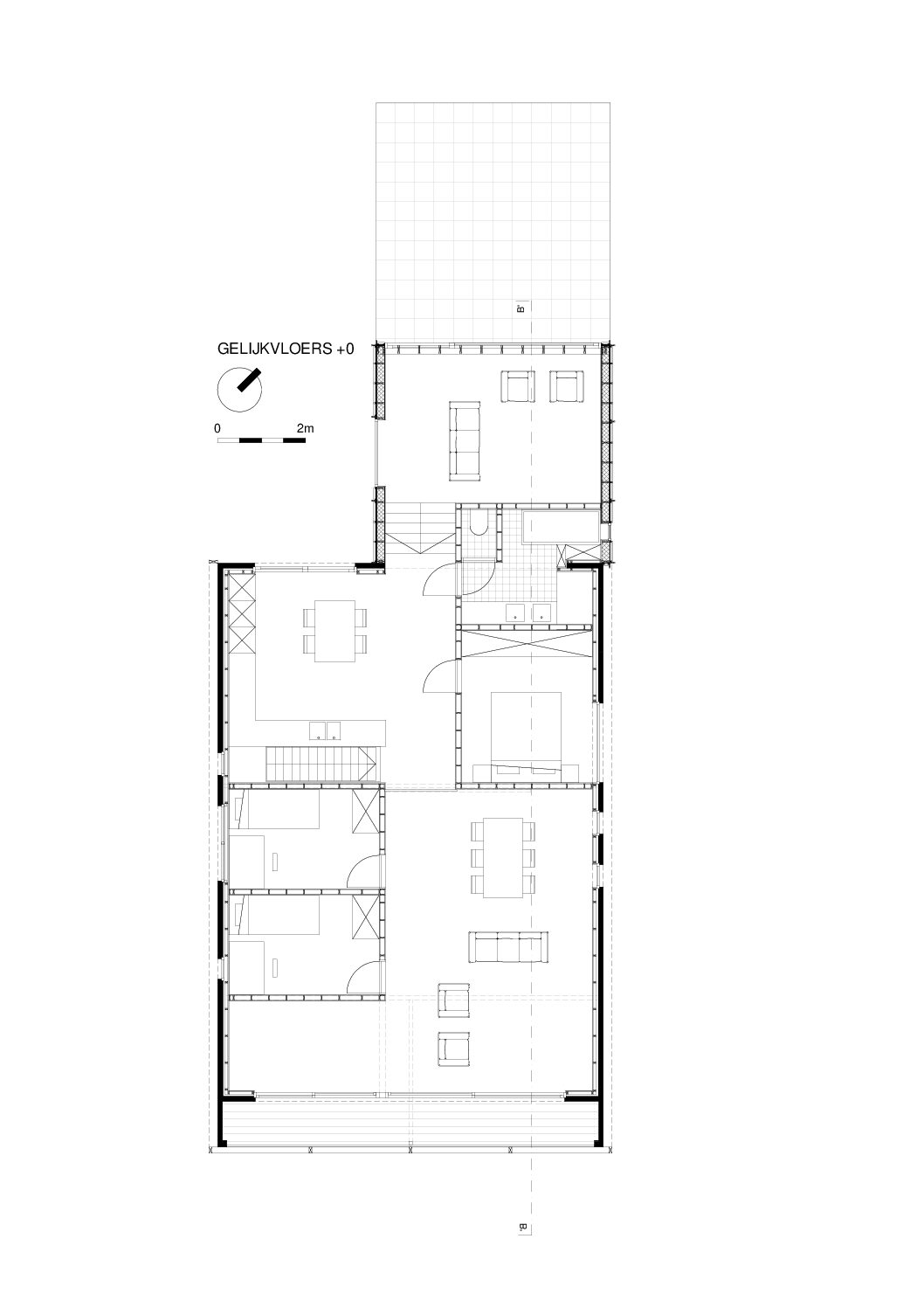
De woning bestaat uit een half-verzonken kelderverdieping en een (verhoogd) gelijkvloers. Er is gekozen om de toegang tot de woning te verplaatsen naar de kelderverdieping, samen met garage en bergfuncties. Alle leef- en slaapfuncties worden gebundeld op het gelijkvloers. Op dit niveau wordt achteraan een kleine uitbreiding van de woning voorzien, met zicht op de tuin. Door de oriëntatie (straatzijde is zuidoost) heeft de voorgevel haar transparant karakter behouden. De twee, meer ingetogen, zijgevels ondergaan ook weinig verandering, met kleine, subtiele ramen, waardoor de lichtinval hoofdzakelijk zuidoost-noordwest georiënteerd is. De kelderverdieping wordt naar de straatzijde opengewerkt als overdekte inkom/carport, een nieuwe kolom maakt de zichtbaarheid van de nieuwe inkom visueel duidelijk. De houten latten van de balustrade aan de voorgevel zullen worden door getrokken over de nieuwe uitbreiding achteraan
OPDRACHTGEVER
Privaat
LOCATIE
Lokeren (BE)
ONTWERPTEAM
BLAF architecten
PROGRAMMA
Eéngezinswoning
STATUS
Opgeleverd 2012
