12-0468-toG “Lot 2-133-134-135”
ENERGIENEUTRALE STADSWIJK DE TONDELIER GENT: LOT 2-133-134-135
Basisopzet
Het ééngemaakte lot 2 vindt zijn plaats aan de Gasmeterlaan, geflankeerd door lot 1 (studentenhuisvesting ontworpen door Rapp+Rapp) en lot 7 (kantoorgebouw ook ontworpen door Rapp+Rapp). Het project bestaat uit een eenvoudig bouwvolume, afgebakend door een doorlopend bakstenen gevelfront, wat resulteert in een helder straatbeeld. Ook de achtergevel die grenst aan het collectief-privaat binnengebied wordt kwalitatief opgetrokken in metselwerk, met uitzondering van de uitbouw op het gelijkvloers die naast een houten draagstructuur, ook een houten gevelafwerking krijgt. Achter het bakstenen front is het beschermd volume op verschillende plaatsen kleiner dan het visuele volume, wat resulteert in zogenoemde “loggia’s”. Deze buitenruimtes zijn ruim overmeten en worden ingezet enerzijds als circulatieruimte (aan de zijde van de Gasmeterlaan), anderzijds als private, inpandige terrassen (aan de zijde van het binnengebied). Deze buitenruimtes krijgen binnen de geleding van de gevel ook een andere uitstraling, wat een leesbaar gebouw oplevert.
Het volume is opgebouwd uit 5 bouwlagen (gelijkvloers en vier verdiepingen) met een teruggetrokken 6e bouwlaag – de zogenoemde “penthouse” verdieping – en een ondergrondse parking. Het gebouw valt volledig binnen de voorschriften van zowel het RUP als de verkaveling.
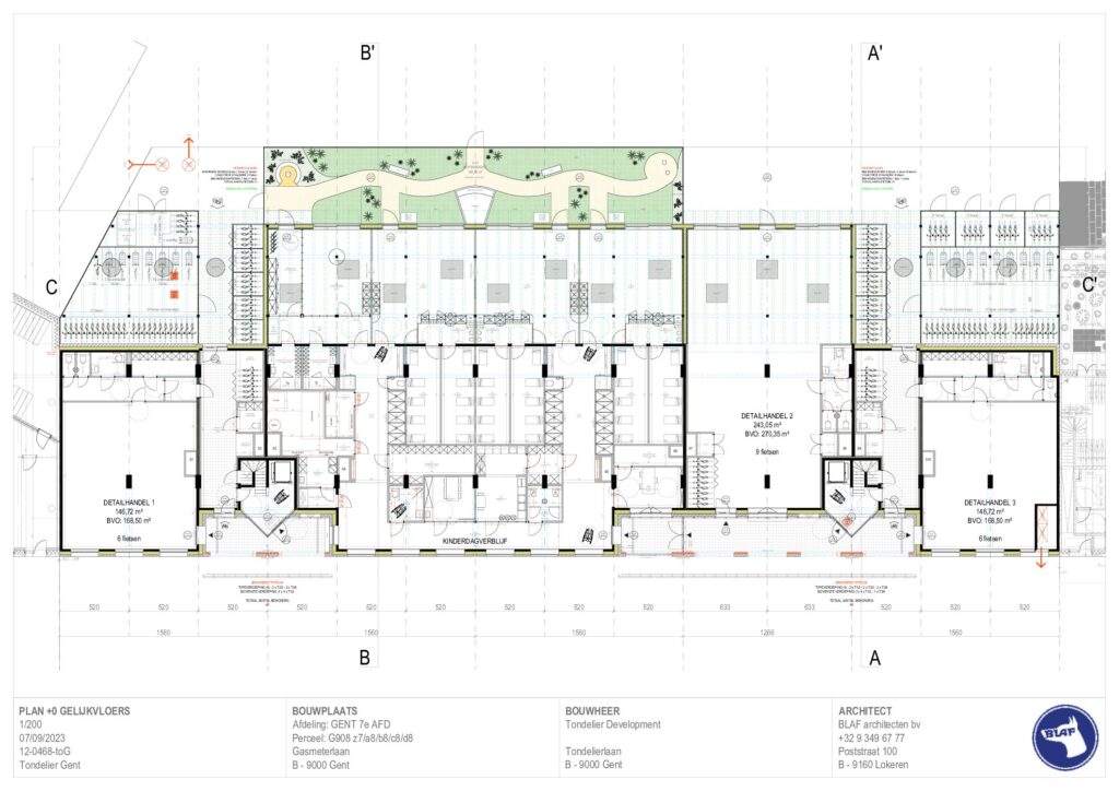
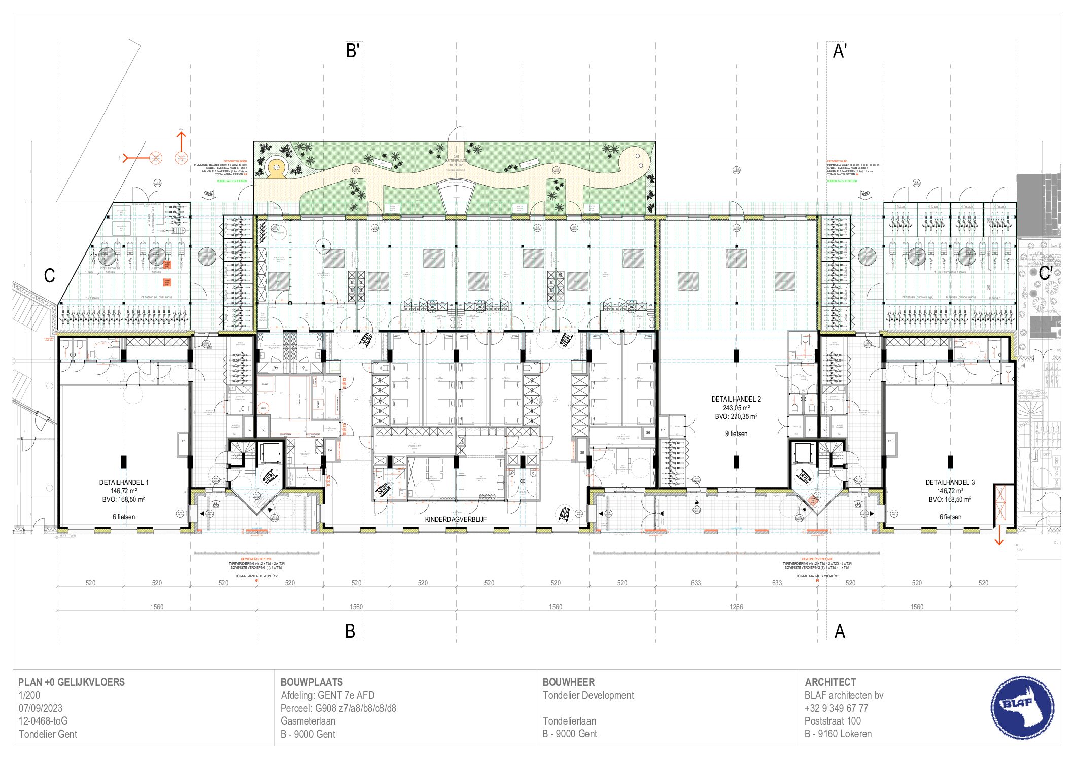
Op het gelijkvloers bevinden zich meerdere functies, waaronder drie casco-ruimtes die zullen worden ingezet voor detailhandel, een kinderdagverblijf dat ontworpen is voor Stad Gent, twee collectieve adressen voor de bovenliggende huurappartementen en de fietsenstallingen die voor deze verschillende functies nodig zijn. De toegangen, handelsruimtes en het kinderdagverblijf bevinden zich aan de Gasmeterlaan, aan de hofzijde grenzen de fietsenstallingen, maar ook de leefruimtes van het kinderdagverblijf en een van de handelsruimtes. Al deze functies samen zorgen voor een gevarieerde plint aan de straatzijde, maar ook aan de zijde van het binnenhof. De adressen aan de Gasmeterlaan bevinden zich niet direct op de stoep, maar in de overdekte buitenruimte die de doordruk is van de “loggia’s” van de bovenliggende verdiepingen.
Boven dit opgeladen gelijkvloers bevinden zich in totaal 49 budget-huurappartementen. In een poging om de schaal van dit gebouw – met een gevel van +/- 75 meter toch een groot gebouw – beheersbaar te houden, wordt het vanaf de eerste verdieping functioneel in twee geknipt. Dit betekent dat de twee adressen op het maaiveld elk toegang geven tot één stijgkern, die telkens een aantal appartementen bedient. Het ene adres zorgt voor de circulatie van 20 appartementen, het andere adres voor die van 29 appartementen. Beide adressen zijn op het maaiveld ook gekoppeld aan een doorsteek doorheen het gebouw, die leidt naar de fietsenstalling, maar ook naar het binnengebied. Op deze manier ontstaat de mogelijkheid tot visuele relatie, maar ook de optie voor de bewoners om het gebouw ofwel via de Gasmeterlaan te betreden ofwel via het binnenhof.
Onder het gebouw bevindt zich een parking, die ook doorloopt onder lot 7, met de inrit in lot 29. De parking wordt breed ingezet voor de gehele ontwikkeling, maar de circulatiekernen van lot 2 zijn enkel toegankelijk voor de bewoners van dit lot. De algemene toegang van de parkeergarage bevindt zich in lot 7.
OPDRACHTGEVER
Tondelier Development NV
LOCATIE
Tondelier, Gasmeterlaan – Elsstraat, 9000 Gent
ONTWERPEND ARCHITECT
BLAF architecten
ARCHITECT UITVOERING
Bureau Bouwtechniek NV
PROCEDURE
Aanstelling voor de architectenpool op uitnodiging
STATUS
bouwaanvraag
