14-0540-noL
ON-TOP-SHOP
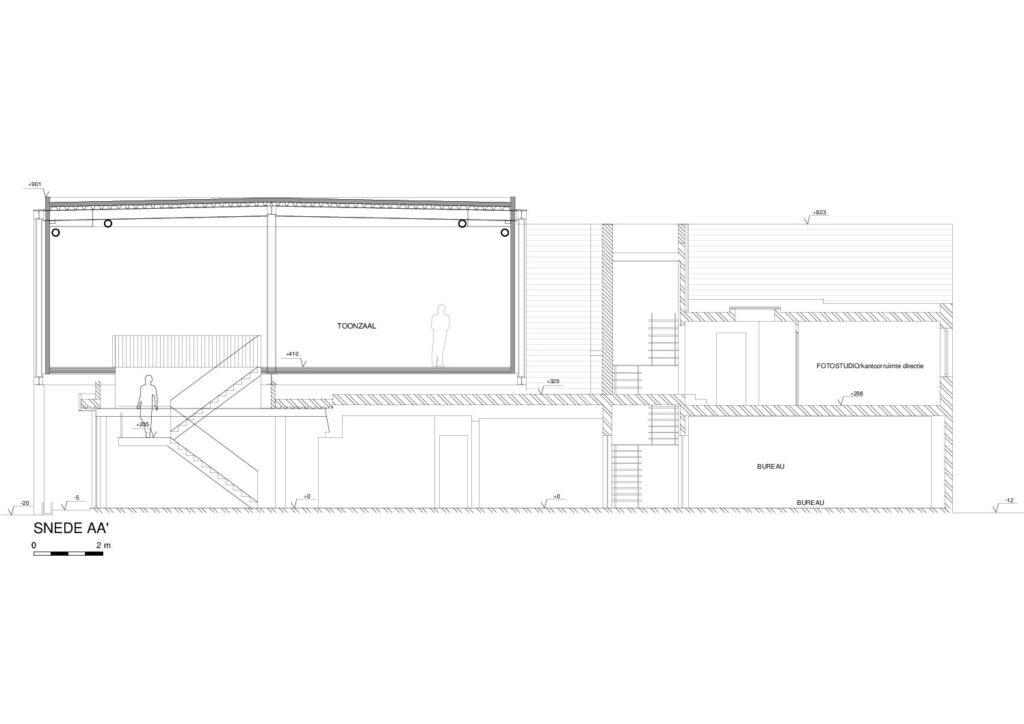
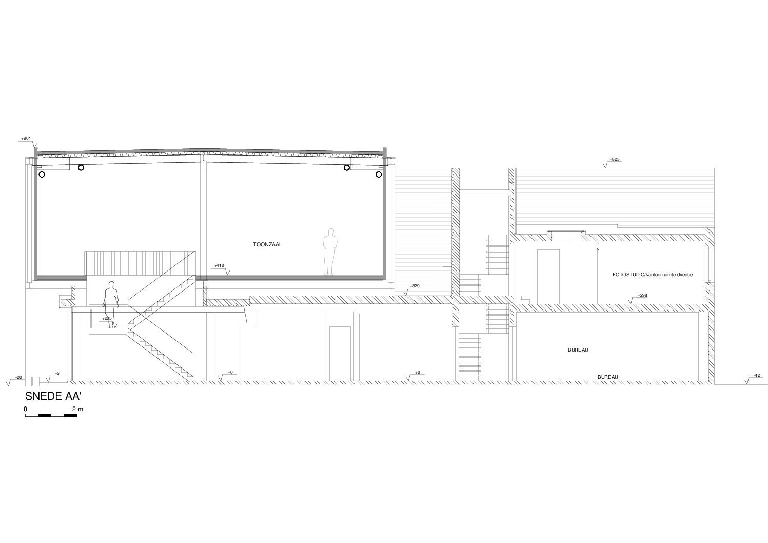
De bestaande bebouwing wordt uitgebreid op verdieping. De uitbreiding van de toonzaal vooraan is een stalen constructie. Deze constructie staat over de bestaande toonzaal, op 4 externe kolommen zoals een bed op 4 poten. Door de compacte funderingszolen en de grote overspanning moet er niet structureel ingegrepen worden op de bestaande constructie; enkel een trapgat wordt uitgesneden in het bestaande dak om de twee volumes te verbinden. Hierdoor kan de uitbreiding gebeuren zonder dat de winkel hoeft te sluiten, één van de basiscriteria. Het geïsoleerd volume in de staalstructuur bestaat voornamelijk uit sandwichpanelen en grote raampartijen. Voor de raampartijen kan opnieuw een screendoek met logo geplaatst worden die tevens dienst doet als zonnewering.
Bovenop de bestaande toonzaal (±350m²) vormt dus het stalen bed een baken van licht en transparantie in een hedendaagse architectuur (toegevoegde oppervlakte (±350m²).
De woning op het eerste verdiep wordt grotendeels afgebroken, enkel het gedeelte boven het bureau blijft behouden samen met de bestaande traphal. De afbraak op verdieping maakt dus plaats voor de staalstructuur vooraan.
Achteraan links wordt het gelijkvloers ook uitgebreid op verdieping, dragend op de onderliggende structuur.Het is een kleiner volume (±75m²) toegevoegd waar pashokjes en toonzaal worden ondergebracht. Dit volume krijgt een opening waar beddengoed op een ergonomische manier kan aangebracht worden. Het geheel is ontworpen en getoetst naar de normen.
OPDRACHTGEVER
Noppe Slaapcultuur
LOCATIE
Lokeren (BE)
ONTWERPTEAM
BLAF architecten
PROGRAMMA
Uitbreiding van een handelsruimte
BRUTO VLOEROPPERVLAKTE
300m²
STATUS
Opgeleverd 2016
