15-0566-tlG
OPTOPPING tlG TE GENT
De interesse van BLAF voor duurzaam en circulair bouwen beperkt zich niet tot de energieperformantie van gebouwen. Wat BLAF kenmerkt is dat we ontwerpmatig en bouwmethodisch blijven reageren op de steeds complexer wordende vraagstukken inzake ruimtelijke planning, duurzaamheid, betaalbaarheid, circulariteit en huisvesting. Aan de basis van onze visie-ontwikkeling ligt onder meer het experimenteren met de basiscomponent van ons “genetisch” materiaal: de eengezinswoning.
De woning ligt aan het Fonteineplein in de wijk Brugse Poort, een Gentse volksbuurt in de 19de-eeuwse gordel van de stad. Rond de eeuwwisseling is het een bijzonder dichtbevolkte wijk, met een heel diverse bevolking in verouderde gebouwen. Onder de noemer ‘Zuurstof voor de Brugse Poort’ beslist de Stad Gent in 2002 om de buurt te herwaarderen, te herstructureren én om de functionele, culturele en sociale mix in de wijk te versterken. Zo ontstond er een nieuwe dynamiek in de wijk wat ook Tim & Linde aantrok. Het hoekhuis werd door hen doorheen de jaren opgeknapt binnen de bestaande structuren. Het koppel wordt een gezin met 2 kinderen, is ondertussen sociaal verankerd in zijn buurt en wenst er te blijven wonen. Een uitbreiding van de woning wordt een noodzaak voor het gezin, waar een werkatelier zich op het gelijkvloers bevindt en er nood is aan een extra slaapkamer.
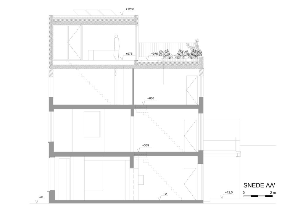
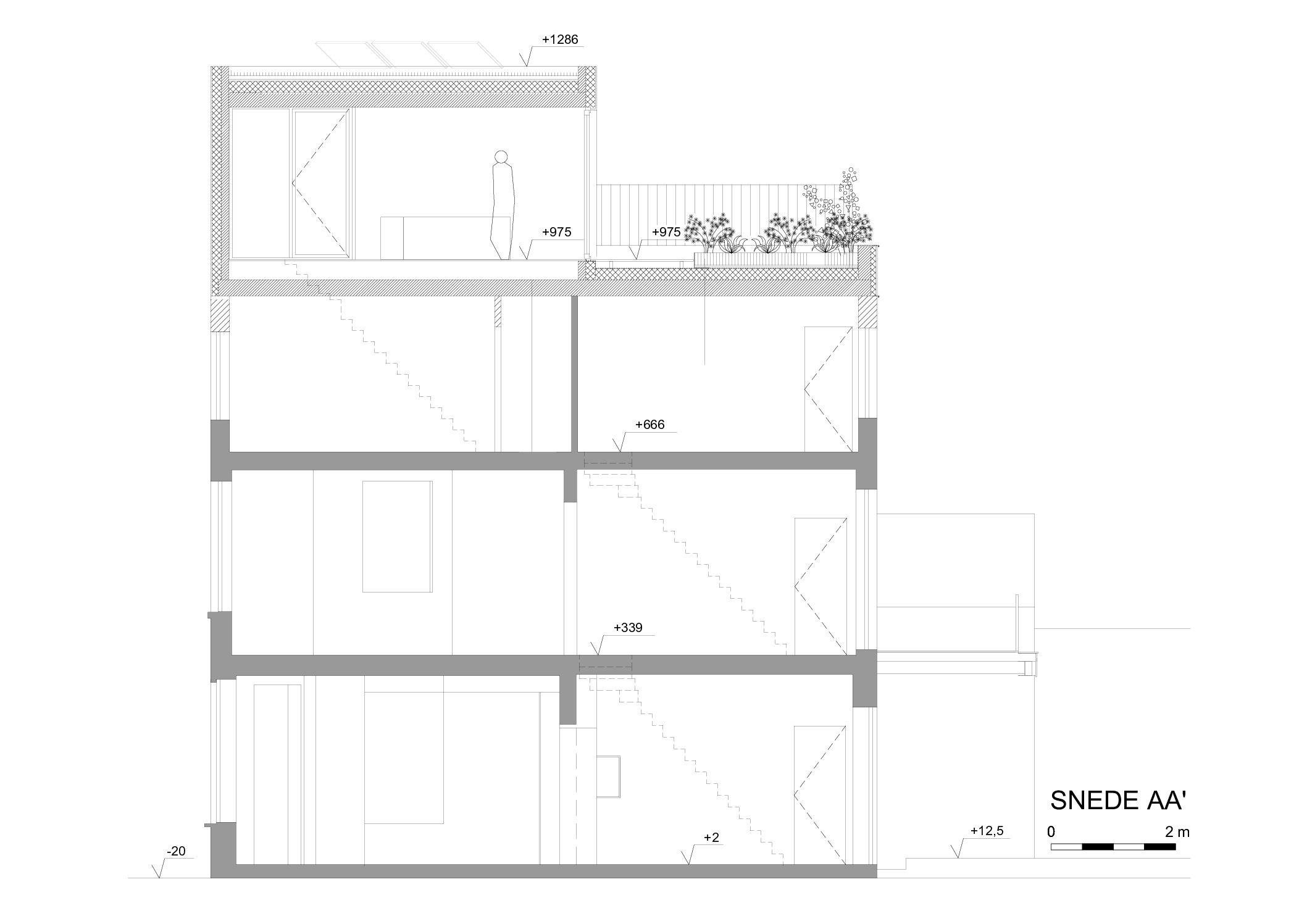
De optopping vormt de letterlijke kroon op het verbouwd werk, en accentueert het hoekpand tot herkenningspunt in een stratenpatroon met ingewikkelde structuur. Er wordt gekozen voor een lichte houten CLT structuur die de bestaande structuur niet in gewicht belast maar eerder verstevigd als verbinding. De snelle manier van bouwen belast het gezinsleven minimaal in werffase. De bestaande gevel blijft het contact zoeken met de omliggende bebouwing terwijl de lichte optopping het licht en zicht opzoekt met de ruimere omgeving.
OPDRACHTGEVER
Privaat
LOCATIE
Gent (BE)
ONTWERPTEAM
BLAF architecten
PROGRAMMA
Eéngezinswoning
BRUTO VLOEROPPERVLAKTE
33m² (optopping) + 34m² (terras)
NETTO BOUWBUDGET
€141.000 (excl BTW en erelonen)
MATERIALEN
Gevelpleister en isolatie op een CLT constructie
STATUS
Opgeleverd 2018
FOTOGRAFIE
Stijn Bollaert
AWARDS
tlG was part of COMPOSITE PRESENCE at the Biënnale Architettura 2021 (Curator: Bovenbouw Architectuur, Production: Flanders Architecture Institute)
