15-0574-hoeL “lot 63”
NIEUWBOUW HALFOPEN WONING
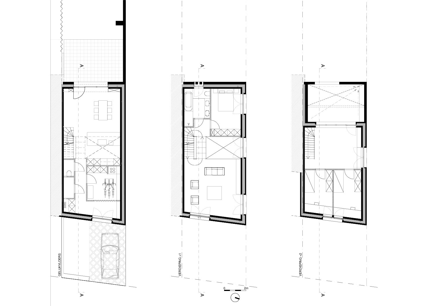
Binnen de beperkte footprint trachten we te zoeken naar een maximale ruimtelijkheid. In de woning wordt gestreefd naar een maximale lichttoetreding, de centrale vide zorgt voor natuurlijke licht in de kern van de woning. De openingen in de zijgevel bieden de mogelijkheid voor meer lichttoetreding en uitzichten. Betonnen breedvloerplaten dragen tussen de gemene muren om deze vide en niveauverschillen te realiseren. De circulatie met trap wordt centraal in de woning voorzien en verbindt de leefkeuken, die zich op het gelijkvloers situeert, met de zitruimte op de eerste verdieping aan de straatzijde. Op de eerste verdieping aan de tuinzijde bevindt zich de ouderslaapkamer en bijhorende badkamer. Op de bovenste verdieping zijn twee kinderkamers en een polyvalente ruimte gelegen. De hal geeft toegang tot het dakterras achteraan de woning gelegen. De vierkante gevelopeningen zijn een reflectie van de niveaus met verschillende hoogtes, waardoor deze verspringen tegenover elkaar. De rondbogen worden toegepast om de toegang tot de woning te accentueren op het gelijkvloers. Als ook om de opening in de gebouwschil van het dakterras te accenturen op dezelfde wijze.
OPDRACHTGEVER
Privaat
LOCATIE
Lokeren (BE)
ONTWERPTEAM
BLAF architecten
STATUS
Opgeleverd 2021
