15-0574-hoeL “lot 64”
BOUWEN VAN EEN RIJWONING
In een bouwblok tussen de Koning Boudewijnlaan, Haarsnijderslaan, Veldstraat en de Molenstraat (de westelijke rand van het centrum van Lokeren) is de Hoedhaar-site gelegen. De stad Lokeren en Interwaas zijn grondeigenaar en realiseren het project in samenwerking met Van Roey vastgoed uit Rijkevorsel, naar een masterplan van SBA. Op en rond de voormalige Hoedhaar nv (haarsnijderij) wordt een nieuw park van 2.5 ha en een gemengd woonproject van 300 nieuwe woningen gerealiseerd.
Bij de opmaak van het ontwerp van masterplan voor de ontwikkeling van het woonproject is er veel aandacht besteed aan het behoud van de bestaande ruimtelijke structuur. De bestaande beek is behouden en wordt geïntegreerd als een ‘beekvallei’. Ook de integratie van een buurtpark van 2.5 ha in het project betekent een grote meerwaarde voor de grotere omgeving. In het zuiden van de site biedt Interwaas 85 bouwgronden aan met vooral halfopen en gesloten bebouwing. De aanvraag betreft één van deze 85 woningen. Het openbaar domein is reeds aangelegd en de eerste gebouwen worden gebouwd.Lot 64 is een perceel voor een rijwoning. Het bevindt zich tussen twee andere gebouwen waarvan links hetzelfde type van 2.5 bouwlagen en recht een halfopen hoekwoning met 3 bouwlagen. De straat is aangelegd in klinkers. De straatzijde van het perceel is noordoostelijk georiënteerd. Aan de achterkant van het perceel ligt een fiets/wandelpad.
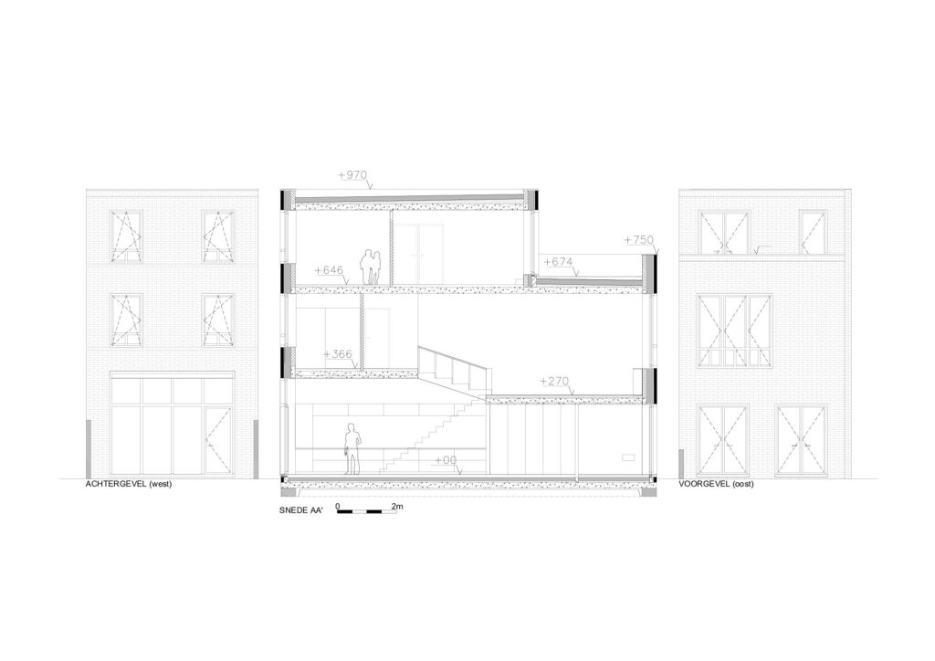
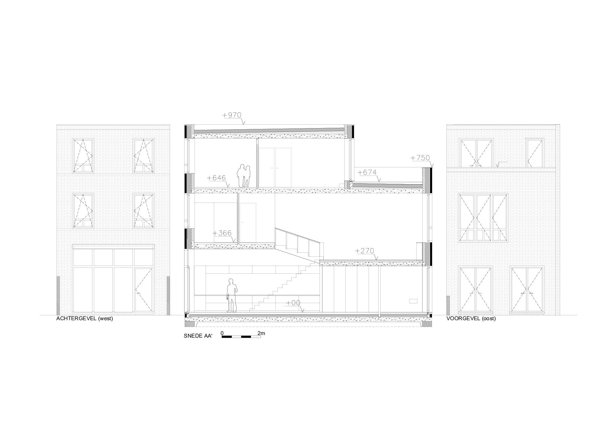
Binnen de beperkte footprint trachten we te zoeken naar een maximale ruimtelijkheid. In de woning wordt gestreefd naar een maximale lichttoetreding, de centrale vide zorgt voor natuurlijke licht in de kern van de woning. Betonnen breedvloerplaten dragen tussen de gemene muren om deze vide en niveauverschillen te realiseren. De circulatie met trap wordt centraal in de woning voorzien en verbindt de leefkeuken, die zich op het gelijkvloers situeert, met de zitruimte op de eerste verdieping aan de straatzijde. Op de eerste verdieping aan de tuinzijde bevindt zich de ouderslaapkamer en bijhorende badkamer. Op de bovenste verdieping zijn drie kinderkamers en een douchekamer gesitueerd. De hal geeft toegang tot het dakterras.
OPDRACHTGEVER
Privaat
LOCATIE
Gentbrugge (BE)
ONTWERPTEAM
BLAF architecten
PROGRAMMA
Eéngezinswoning
STATUS
Opgeleverd 2021
