18-0633-ekL
NIEUWBOUW VAN EEN DIENSTENCENTRUM
Een nieuwe polyvalente ruimte en ruimte voor personeel zijn een noodzaak voor de werking van de evangelische kerk.
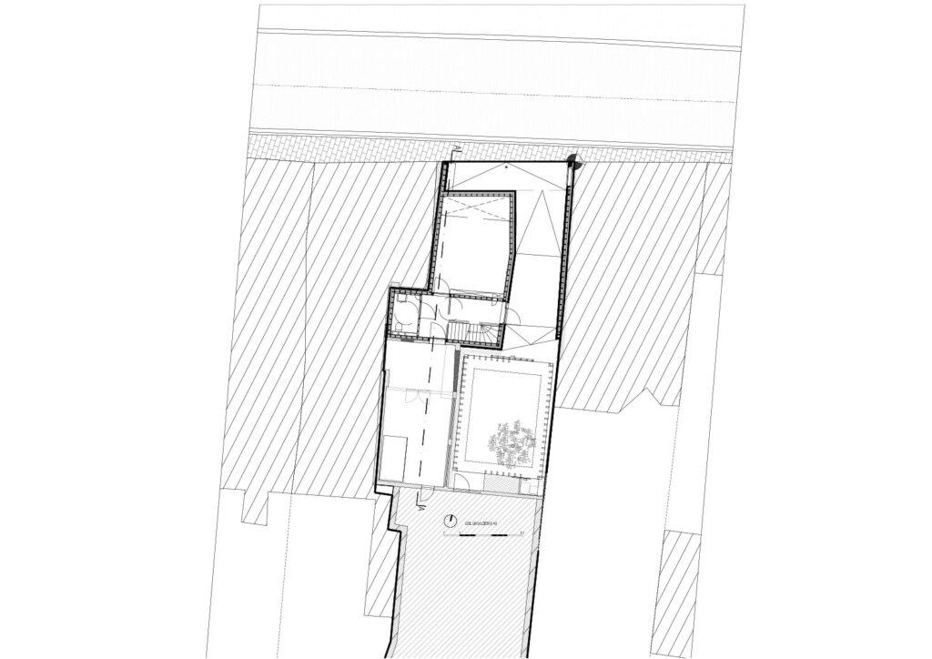
Om een compacte nieuwbouw te kunnen realiseren werd gekozen om de rijwoning aan de straatkant af te breken en onderling overlappende ruimtes van de rijwoning met nr 32 te ruilen. Een nieuwe en duidelijke leesbare perceelgrens wordt hierdoor vastgelegd in de notariële akte. Bij de buur worden geen stabiliteitswerken uitgevoerd om de ruil mogelijk te maken.
De nieuwbouw met plat dak ligt 1.8m teruggetrokken van de voorste perceelgrens waardoor er een overdekte “voorkamer” ontstaat van 2 bouwlagen hoog om ruimte te bieden voor rust en groen. Een bredere doorgang naar de koer en achterliggende ruimtes wordt voorzien op dezelfde plaats als de bestaande toestand en is gedimensioneerd zoals besproken met de brandweer. Hierdoor ontstaat een meer toegankelijke en gastvrije toegang. In het kader van toegankelijkheid wordt in deze doorgang een helling en een bredere ingang voorzien om comfortabel toegang te bieden tot de hal, de koer en de polyvalente ruimte en andersvalidetoilet op het gelijkvloers. De koer doet dienst als verzamelplaats bij ontmoetingen. De centrale trappenhal dient als schakelpunt en ontsluiting tussen de oude en nieuwe bebouwing. Op de verdieping bevinden zich voornamelijk personeelsruimtes en zijn niet voor publiek toegankelijk.
Er gelden voor dit perceel geen specifieke stedenbouwkundige voorschriften. Na een korte bespreking met dienst omgeving is er meegedeeld dat er geen probleem is om in volume te minderen zolang er niet buiten het profiel van het bestaande volume wordt gebouwd. Het wegnemen van de derde bouwlaag met hellend dak zou dan ook geen probleem vormen aangezien hierdoor minder impact op de omgeving ontstaat. Extra parkeergelegenheid voorzien op eigen terrein is niet mogelijk. Er is echter voldoende parkeergelegenheid in de straat met de mogelijkheid om aan beide kanten van de straat te parkeren. Op 100m van het perceel is een plein gelegen met parking.
De nieuwbouw is besproken met dienst toegankelijkheid waarbij we verder verwijzen naar de toegankelijkheidsnota
OPDRACHTGEVER
Privaat
LOCATIE
Lokeren (BE)
ONTWERPTEAM
BLAF architecten
PROGRAMMA
Nieuwbouw van een dienstencentrum
STATUS
Opgeleverd 2020
