18-0640-htE

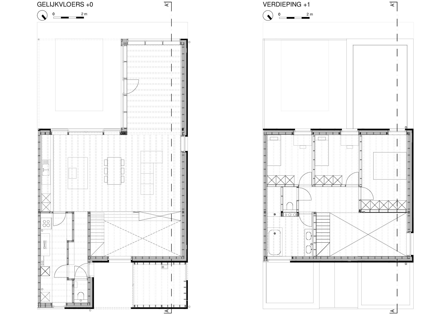
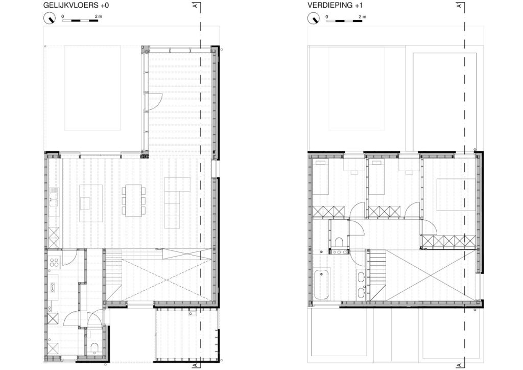
NIEUWBOUW VAN EEN DIENSTENCENTRUM

OPDRACHTGEVER
Privaat

LOCATIE
Lokeren (Eksaarde) (BE)

ONTWERPTEAM
BLAF architecten

PROGRAMMA
Nieuwbouw halfopen ééngezinswoning

STATUS
Opgeleverd 2021