18-0644-pkR
EENGEZINSWONING
Deze woning wordt voorzien binnen de bouwzone, en positioneert zich zelfs eerder teruggetrokken naar het westen waardoor een bredere bouwvrije strook ontstaat. Zo wordt het open karakter versterkt, en de privacy naar de buur toe gewaarborgd. De contextuele inpassing van het volume in de omgeving qua schaal hebben we nagestreefd. We ambiëren geen nadrukkelijk aanwezig gebouw of bevreemdend gebouw, maar een volume dat zich qua schaal en materialiteit inpast in zijn omgeving.
Bij BLAF ontwerpen we uiterst performante duurzame woningen, vanuit een integrale aanpak op economisch, energetisch, ecologisch, cultureel en sociaal vlak. Onze visie is gebaseerd op de ‘Trias Energetica’, waarbij we verliezen en behoeften beperken door compactheid en een performante isolerende schil. We bouwen vrij van fossiele brandstoffen, en zetten in op hernieuwbare energie om de behoeften te dekken.
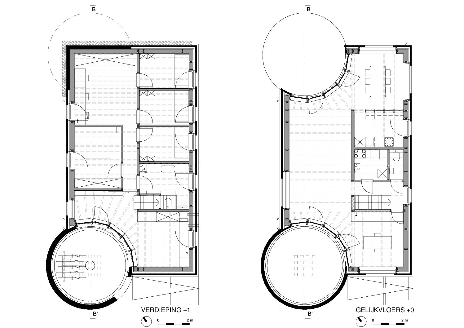
De woning is door zijn ligging auto-afhankelijk. Om toch deze mobiliteit te beperken, wordt de woning iets ruimer ontworpen dan enkel de woonfunctie, zodat thuiswerk mogelijk is. Ondanks de ruimere oppervlakte, wordt gekozen voor een compact volume van 2 bouwlagen.
In een goed geïsoleerde en luchtdichte woning, gaat weinig warmte verloren. Het is moeilijker om een woning koel te houden in de zomer, dan op te warmen in de winter. Door het toepassen van een mechanisch ventilatiesysteem, wordt de warmte over de gehele woning verdeeld. Dat warme lucht stijgt, is een thermodynamische wet die niet kan teniet gedaan worden. Vanuit deze wetmatigheid is het logischer in functie van wooncomfort de leefruimtes boven de slaapruimtes te positioneren, vermits leefruimtes best 2°C warmer zijn dan slaapruimtes. Dit principe staat tegenover het klassieke huis met tuin model, waarbij de tuin in aansluiting is met de leefruimte. Door het volume verzonken toe te passen verzoenen we beide principes: slaapruimtes kunnen toch onder de leefruimtes gepositioneerd worden, en bijkomend wordt ingezet op een zo sterk mogelijke relatie tussen leefruimte en tuin. 2 ronde terrassen worden op hetzelfde niveau van de leefruimte gebracht, waardoor er sowieso een kwalitatieve buitenruimte onmiddellijk bij de leefruimtes hoort. Een verheven zicht vanuit de leefruimte op de achterliggende velden is tevens een kwaliteit. Door het tuinontwerp wordt verder een grondgebonden interactie gecreëerd tussen leefruimte en tuin.
OPDRACHTGEVER
Privaat
LOCATIE
Reet (BE)
ONTWERPTEAM
BLAF architecten
PROGRAMMA
Eéngezinswoning (nieuwbouw)
STATUS
Opgeleverd 2021
BUDGET
€ 423.000 (excl btw, ereloon, studiekosten en buitenaanleg)
VIERKANTE METERPRIJS
€ 1.741/m²
BRUTO VLOEROPPERVLAKTE
243m² (incl. overdekte inkom)
TUINARCHITECT
Stefan Morael
FOTOGRAFIE
Mr. Frank
