19-0655-kvK
KV KORTRIJK TRAININGSCENTRUM
Na analyse van het masterplan, de context en het bouwprogramma komen we tot dit ruimtelijk voorstel. Op de scharnier van corridor en straat kan een landmark helpen in oriëntatie en herkenning. Op het einde van de lintbebouwing opent zich een grote horizontale ruimte als parking, tuin en oefenvelden waarin respectievelijk kerk met klooster, herenhuis en oefencentrum zich positioneren. Het oefencentrum als landmark verduidelijkt de intenties van het masterplan. Het volume op de scharnier wordt verticaal, 3 bouwlagen. Een tweede volume vult het eerste programmatorisch aan. Het tweede volume is bescheidener dan het eerste, het is horizontaler met 2 bouwlagen en past zich bescheiden en teruggetrokken in de context.
Door zijn contextuele inpassing zoekt het vertikale volume zijn plaats in de stad en manifesteert zich, terwijl het horizontale zich eerder aanpast en inpast.
Het circulaire gebouw neemt zijn verantwoordelijkheid naar de toekomst. Enerzijds wordt het door zijn modulaire opbouw aanpasbaar wat de tijdelijkheid en polyvalentie benadrukt, doch anderzijds heel duurzaam opgebouwd op een energetisch en ecologisch verantwoorde manier.
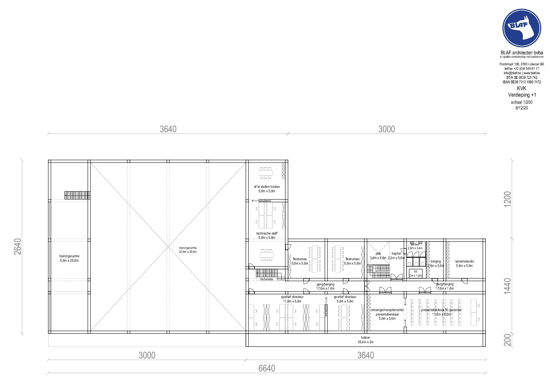
Het modulair bouwen wordt mogelijk door de integratie van een gridstructuur (6m x 6m). De gridstructuur is universeel, vrij invulbaar en vormt als skelet de basis voor gevel, binnenwanden, ruimtes. De gridstructuur cultiveert simultaan de compartimentering en polyvalentie van het gebouw. Een houtskeletstructuur leent zich hier perfect toe, dit zowel uit een constructieve als demonteerbare logica. Daarnaast verenigt de toepassing van hout zowel de ecologische als circulaire verlangens.
Het ontwerp streeft een eenvoudige en zuivere architectuurtaal na om zo een leesbaar en beheersbaar geheel te creëren. Het wordt gematerialiseerd als hoofdtoon in het rood, en past zich in de rood bakstenen context in. Het gebouw stelt zich terughoudend op ten opzichte van zijn omgeving. De volumetrie van het gebouw trekt zich terug van de Moorseelsestraat waardoor groene voortuinstroken ontstaan. Deze voortuinstroken versterken het groene karakter van de omgeving door het gebouw te omsluiten en aan te sluiten met de corridor.
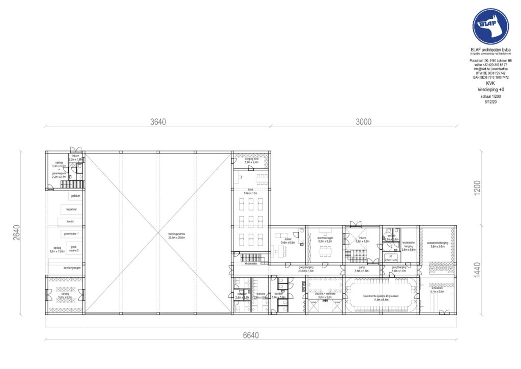
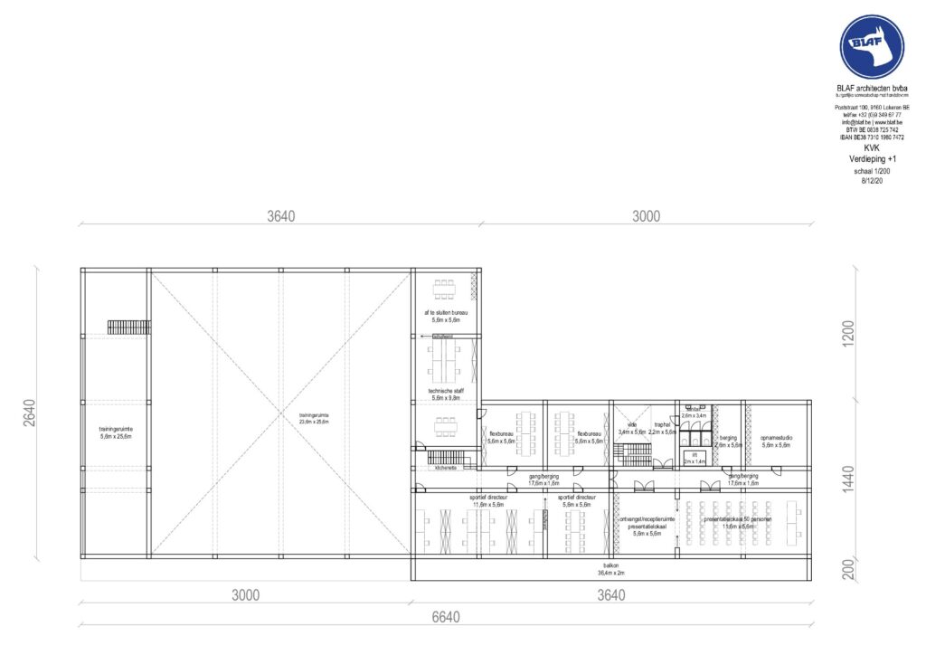
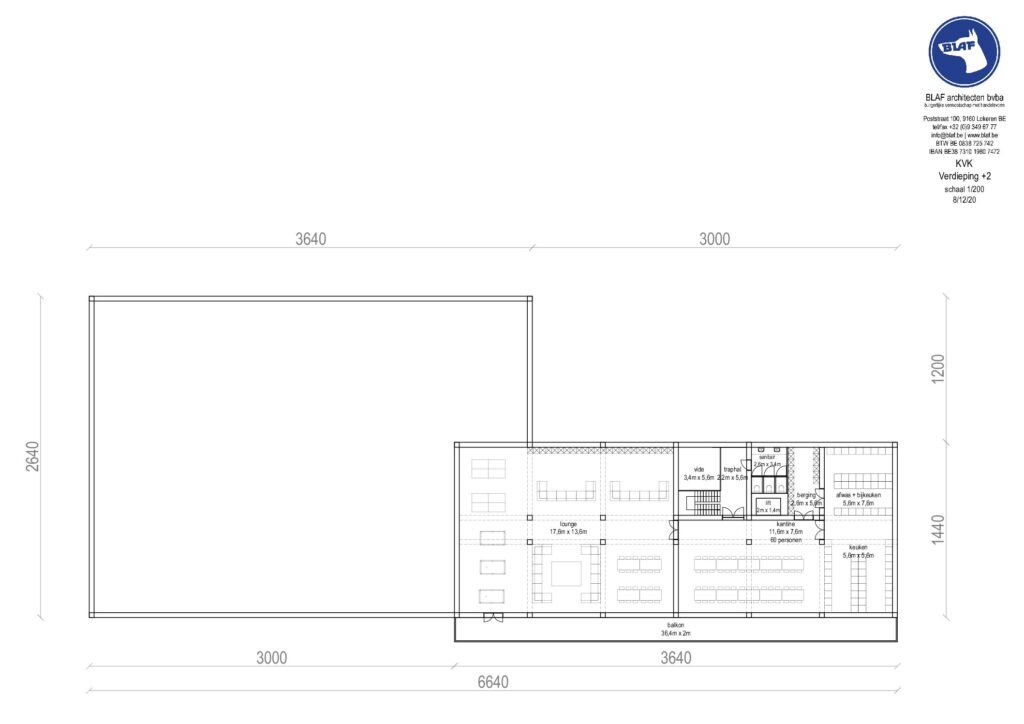
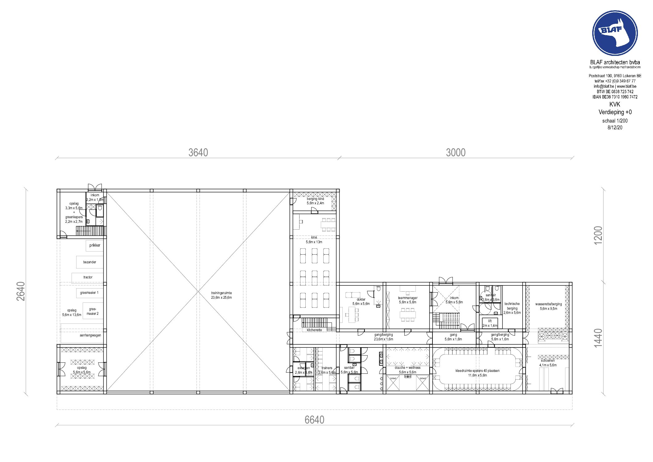
PROGRAMMA
Hoofdingang met trap en lift, publiek sanitair, spelerszone (schoenenzone, wasserette, kleedruimte 40 personen, douches, ijsbaden, sanitair spelers en trainers, kleedruimte trainers), burelen, dokterskabinet, trainingsruimte, overdekte buitenruimte, berging, receptie, persruimte, opnamestudio
OPDRACHTGEVER
KV Kortrijk
TEAM
BLAF architecten
GELEVERDE DIENSTEN
studie architectuur
LOCATIE
Moorseelsestraat, 8500 Kortrijk (BE)
OPPERVLAKTE
Totale BVO 2687 m²
BUDGET
3.900.000 €
STATUS
in uitvoering
PUBLICATIES (DIGITAAL)
vrt.be, hln.be, hln.be, hln.be, focus-wtv.be
