21-0697-kochS
HERBOUW VRIJSTAANDE ÉÉNGEZINSWONING
In een landelijke context werd een bestaande woning zorgvuldig gesloopt en deels hergebruikt om plaats te maken voor een nieuwe, toegankelijke en duurzame woning. De bouwheer – eigenaar van twee kavels – kiest bewust voor een compacte invulling van slechts één perceel, wat een genereuze tuinzone mogelijk maakt.
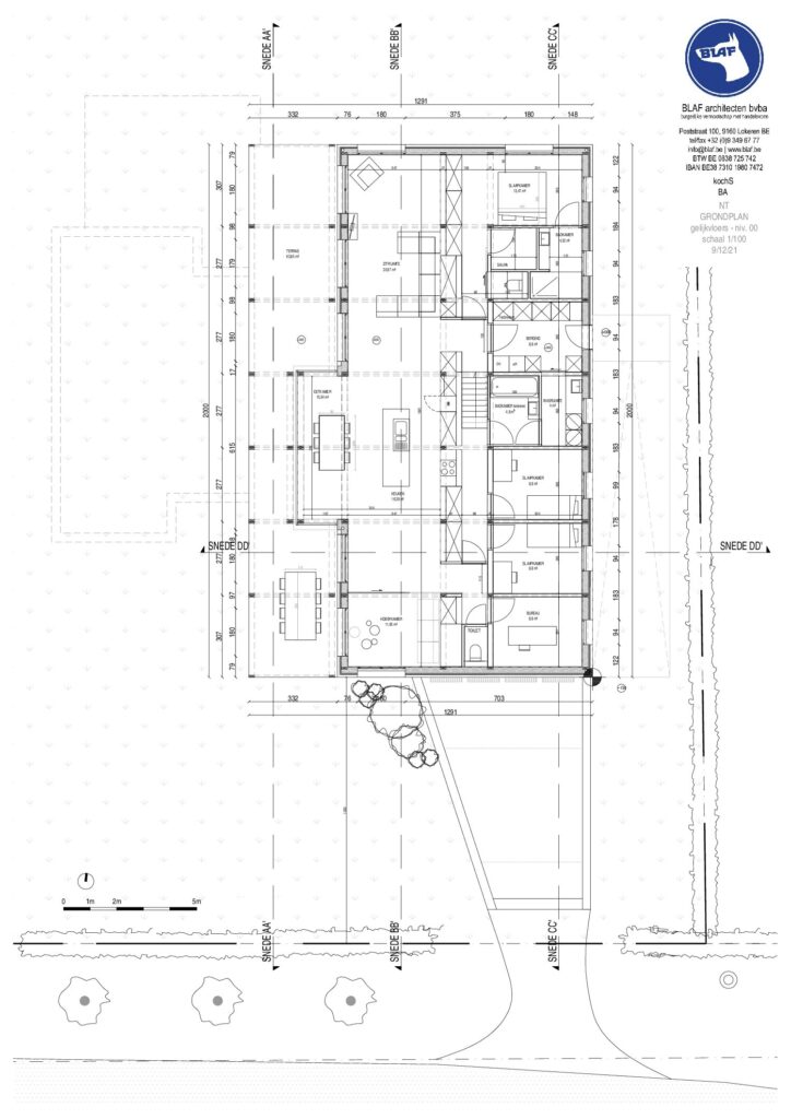
De nieuwe woning bestaat uit één opgetilde bouwlaag met alle woonfuncties op gelijk niveau, rustend op een half-verzonken kelderverdieping die fungeert als technische en toegangszone. De (rolstoel)toegankelijkheid staat centraal: beide niveaus zijn verbonden via een zachte helling en een centrale trap, met toekomstgerichte voorzieningen voor verdere aanpassing.
Het plan volgt een heldere tweedeling: de meer gesloten oostzijde herbergt de private ruimtes, terwijl de westelijke zijde open vloeit naar het landschap met leefruimtes die baden in licht en zicht. Pergola’s zorgen voor de noodzakelijke beschaduwing.
De woning is opgebouwd in prefab houtskelet, afgewerkt met een gevelbekleding in kurk – een natuurlijk, ademend en isolerend materiaal dat zich zacht in de groene omgeving voegt.
Met dit project zet BLAF in op sobere innovatie: een doordacht ontwerp dat in vorm, materiaal en organisatie een hedendaags antwoord biedt op woonkwaliteit, ecologie en levenslang wonen.
OPDRACHTGEVER
Privaat
LOCATIE
Sinaai (BE)
ONTWERPTEAM
BLAF architecten
STATUS
opgeleverd 2025
BUDGET
€ 447.000 (excl btw, ereloon, studiekosten en buitenaanleg)
VIERKANTE METERPRIJS
€ 1.650/m²
BRUTO VLOEROPPERVLAKTE
271m² (zonder terras en inrithelling)
